JZ-S/4420靜態中間繼電器用途及接線圖-上海上繼科技有限公司
發表時間:2019-08-09 15:00 瀏覽次數:812 〖返回〗
一、JZ-S/4420靜態中間繼電器
型號含義
靜態中間繼電器有JZJ(HZJ)、JZY(HZY)、JZL(HZL)、 JZB (HZB)、JZS(HZS)等型號
其中,JZ和HZ表示靜態中間繼電器。第三位字母:J表示交流工作電壓,Y表示直流工作電壓,L表示電流工作,B表示帶保持,S表示帶延時)
隨著繼電器所用場合的不斷增加,繼電器的工藝也在不斷改進,靜態中間繼電器也逐漸朝著輕巧,安裝方便的方向發展。RZY、RZYJ、RZF、RZE系列歐規標準的導軌式靜態中間繼電器,殼體體積小,重量只有200-350g、可無限拼裝,觸點易于擴展,可直接安裝在開關柜35mm導軌條上,從而提高了安裝密度,方便接線。
二、JZ-S/4420靜態中間繼電器
內部接線圖及外引接線圖

三、JZ-S/4420靜態中間繼電器
用途
可調延時中間繼電器用于直流或交流操作的各種保護和自動控制線路中,作為輔助繼電器,以增加觸點數量和觸點容量。可根據需要自由調節通電延時或斷電延時的時間。
四、JZ-S/4420靜態中間繼電器
特點
1.靜態中間繼電器采用線圈電壓較低的多個優質密封小型繼電器組合而成,防潮、防塵、不斷線,可靠性高,克服了電磁型中間繼電器導線過細易斷線的缺點。
2.功耗小,溫升低,不需外附大功率電阻,可任意安裝及接線方便。
3.繼電器觸點容量大,工作壽命長。
4.繼電器動作后有發光管指示,便于現場觀察。
5.延時只需用面板上的撥碼開關整定,延時精度高,延時范圍可在0.02-5.00S任意整定。
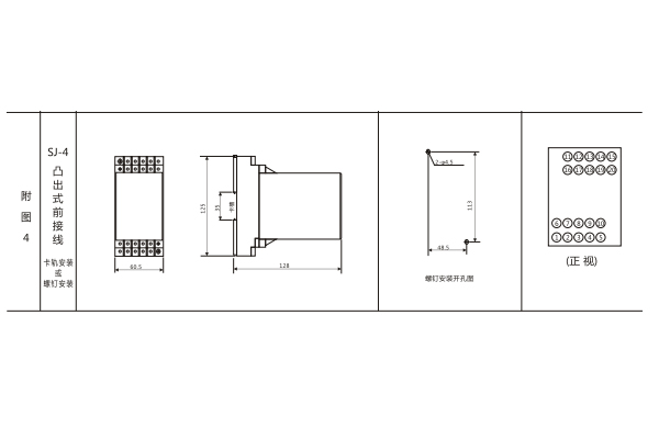
五、JZ-S/4420靜態中間繼電器
外形及開孔尺寸

六、JZ-S/4420靜態中間繼電器
結構原理
⒈線圈裝在"U"形導磁體上,導磁體上面有一個活動的銜鐵,導磁體兩側裝有兩排觸點彈片。在非動作狀態下觸點彈片將銜鐵向上托起,使銜鐵與導磁體之間保持一定間隙。當氣隙間的電磁力矩超過反作用力矩時,銜鐵被吸向導磁體,同時銜鐵壓動觸點彈片,使常閉觸點斷開常開觸點閉合,完成繼電器工作。當電磁力矩減小到一定值時,由于觸點彈片的反作用力矩,而使觸點與銜鐵返回到初始位置,準備下次工作。
⒉本繼電器的"U"形導磁體采用雙鐵心結構,即在兩個邊柱上均可裝設線圈。對于DZY、DZL和DZJ型只裝一個線圈,而對于DZB,DZS,DZK型可根據需要在另一個鐵心上裝以保持線圈或延時用阻尼片等。從而使線圈類型大不相同的繼電器都通用一個導磁體。
上海上繼科技有限公司(專注中間繼電器生產廠家)銷售熱線:021-57233089 QQ:1932551438
(以上內容僅供參考,上海上繼科技有限公司有最終解釋權}
更多繼電器精彩文章→JZY-36中間繼電器技術條件及接線圖





