JZ-S/424靜態可調延時中間繼電器開孔尺寸及技術要求-上海上繼科技有限公司
發表時間:2019-08-09 11:09 瀏覽次數:828 〖返回〗
一、JZ-S/424靜態可調延時中間繼電器
內部接線圖及外引接線圖

二、JZ-S/424靜態可調延時中間繼電器
用途
JZS-424靜態可調延時中間繼電器用于直流或交流操作的各種保護和自動控制線路中,作為輔助繼電器,以增加觸點數量和觸點容量。可根據需要自由調節通電延時或斷電延時的時間。
三、JZ-S/424靜態可調延時中間繼電器
命名及含義

四、JZ-S/424靜態可調延時中間繼電器技術要求
觸點性能
觸點斷開容量,交流:10A,250V AC;直流10A,28VDC。
觸點**切換功率,交流:1800VA;直流:360W。
觸點長期允許閉合電流:裝置輸出觸點長期允許閉合電流為5A。
觸點電氣壽命:輸出觸點在上述規定的負荷條件下,產品能可靠動作及返回50000次。
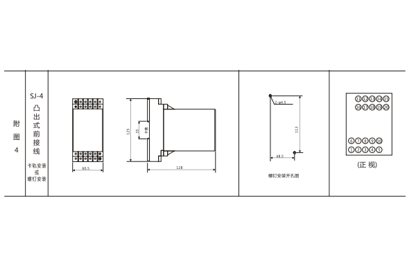
五、JZ-S/424靜態可調延時中間繼電器
外形結構及開孔尺寸圖

上海上繼科技有限公司(專注中間繼電器生產廠家)銷售熱線:021-57233089 QQ:1932551438
(以上內容僅供參考,上海上繼科技有限公司有最終解釋權}
更多繼電器精彩文章→JZY-31中間繼電器接線圖及開孔尺寸





